Descrizione
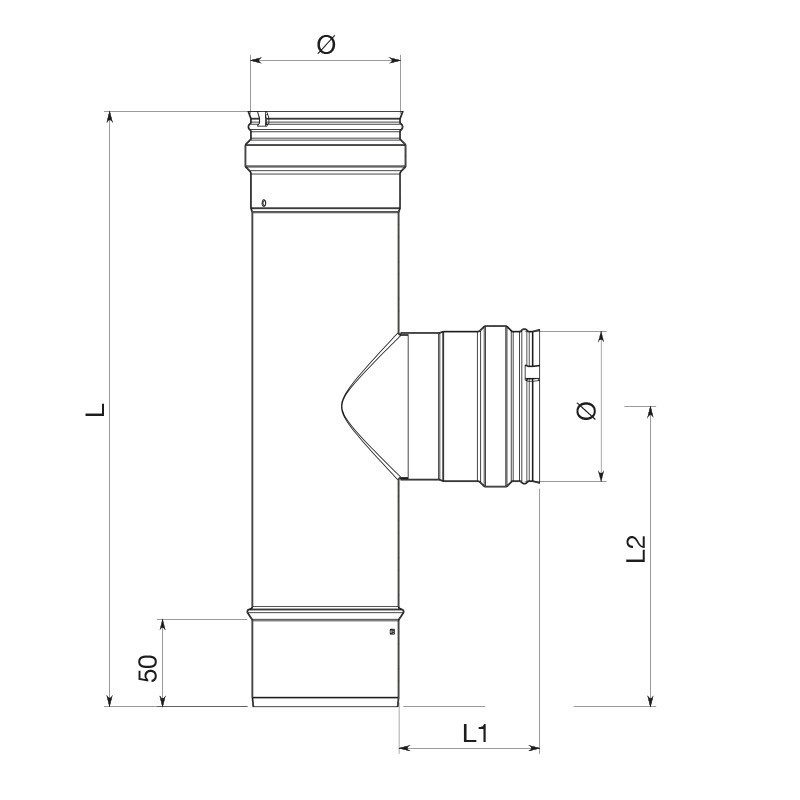
Raccordo a T 90° RACT Femmina-Femmina Acciaio Inox Mono Parete Apros
Raccordo a “T” 90° Femmina-Femmina Canali da fumo per uso interno in acciaio INOX spessore 0,5 mm. Tutti i prodotti sono realizzati mediante processi automatici quali: – saldatura laser longitudinale. – saldatura robotizzata al tig delle curve. – bicchieratura femmina con particolare sistema “click-clack“, esclusivamente dal diametro 80 al 200 compreso, che facilita e velocizza l’installazione . I canali da fumo per generatori a combustibile solido e/o liquido possono raggiungere una temperatura di esercizio fino 200°C massimo. Il Dynamic One viene utilizzato per l’evacuazione dei fumi in funzionamento a secco o a umido. E’ testato fino a 40 Pa in pressione negativa N1 (senza elastometro) e fino a 200 Pa in pressione positiva P1 (con elastometro). Adatti per l’intubamento o risanamento di cavedi e vani tecnici resistenti. Tutta la linea è testata V2, quindi resistente alla corrosione e testata G, quindi resistente all’incendio di fuliggine a 1000°C. Ulteriori articoli APROS al seguente link: https://www.legnagoferr.it/categoria-prodotto/riscaldamento/fumisteria/
raccordo a T 90° ract
Per novità o domande sui nostri prodotti non esitate a contattarci nei seguenti canali: https://www.facebook.com/legnagoferr.srl https://wa.me/393296194945 https://www.instagram.com/legnagoferrs.r.l/
![]()









Recensioni
Ancora non ci sono recensioni.